Добро пожаловать на http://vipplan.ru

Випплан Лиски - это тысячи проектов домов в нашем каталоге!

Вы всегда сможете найти для себя проект дома вашей мечты! Даже если этого не случилось, мы готовы в любую минуту предложить проект индивидуального дома.

Забыли пароль?
Вы еще не регистрировались?

Перейдите по ссылке ниже на страницу регистрации.

Регистрация...

Внимание!!!

В проектную документацию могут быть внесены изменения любой сложности, в соответствии в Вашими пожеланиями!

Полезные статьи

Правильная изоляция подвала

Какой выбрать материал, как правильно выполнить работу, перед началом изоляции подвала какие подготовительно-строительные работы следует провести и какой момент играет правильное выполнение работ. Последние несколько лет придали много хлопот жильцам домов, увлажнив им подвалы. Этот период показал насколько важно обеспечить надлежащую защиту зданий от грунтовых вод и воздействия влаги....

Приобретение земельного участка в собственность

Вы собираетесь приобрести участок. Прежде чем принять окончательное решение, тщательно изучите местность, на которой находится ваш участок, внимательно осмотрите местность. Узнайте о близости реки или других водоемах, всмотритесь в рельеф. Каждый из факторов может иметь неоспоримые плюсы, а также минусы, способные повлиять на окончательное решение. Стоит принять во внимание, что земельные участки, которые продаются «напрямую», дешевле тех, которые реализуют, пользуясь услугами посредников....

Проекты домов и коттеджей > Каталог проектов домов > Одноэтажный дом с мансардой, эркером, гаражом на 2 машины и балконами Vg1112

Одноэтажный дом с мансардой, эркером, гаражом на 2 машины и балконами Vg1112

Одноэтажный дом с мансардой, эркером, гаражом на 2 машины и балконами
Зарегистрируйтесь

Проект № Vg1112


Техническое описание
Общая площадь: 217.48 м2
Жилая площадь: 107.97 м2
Высота здания: 8.71 м
Размеры дома: 16.6м×11.3м
Кол-во комнат: 6
Цокольный этаж: нет
Гараж: нет
Мансарда: есть

Kонструкция
Фундамент: Ленточный, монолитный ж/б
Перекрытия: Сборные ж/б плиты
Материал стен: Кирпич

Архитектурный раздел
Конструктивный раздел
АР+КР - 64 000 (Со скидкой 20%)
Проект индивидуального одноэтажного жилого дома с мансардой с размерами здания 16,60x11,30м. Наружная отделка здания - облицовочный кирпич. Обрамление оконных и дверных проемов - фасадная штукатурка. Цоколь - отделка камнем. Отделка вентканалов и дымоходов - фасадная штукатурка. Кровля - металлочерепица. Фундамент - ленточный, монолитный, ж/б. Наружные стены дома: кирпич забутовочный, ППУ (Жесткий пенополиуретан), кирпич облицовочный. Внутренние стены и перегородки - из кирпича. Перекрытие над первым этажом - сборные ж/б плиты перекрытия. Пол первого этажа - пол по грунту. Отделка вентканалов и дымоходов - фасадная штукатурка. Перемычки - монолитные и сварные из профиля проката. Потолок мансардного этажа - по затяжкам стропильной системы. Крыша - многоскатная. Окна - металлопластиковые, выполненные по индивидуальному заказу. Лестница - деревянная, выполняется по индивидуальному заказу.
Генплан застройки участка / Паспорт проекта 7000 руб / 10000 руб
Инженерный раздел (полный) 108500 руб
Смета на строительство 54250 руб
Теплотехнический расчет материалов стен Бесплатно
Стоимость проекта со незначительнми изменениями 74550 руб
Стоимость проекта со средними изменениями* 90900 руб
Стоимость проекта со значительными изменениями** 95200 руб

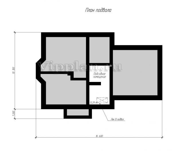
План цокольного этажа


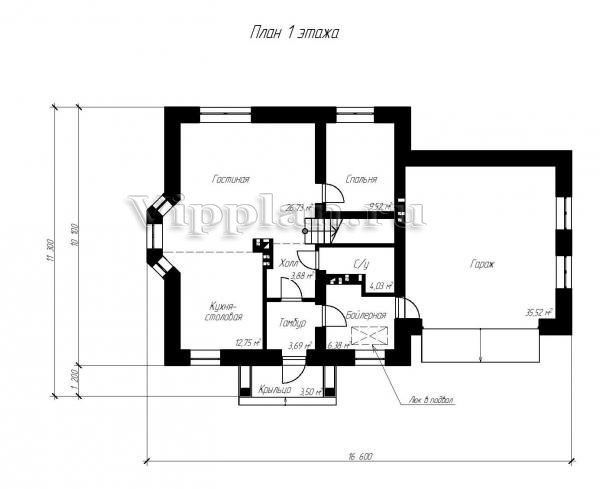
Гостиная — 26,73 кв м
Спальня — 9,52 кв м
Холл — 3,88 кв м
Кухня — 12,75 кв м
Тамбур — 3,69 кв м
Крыльцо — 3,50 кв м
Бойлерная — 6,38 кв м
С/у — 4,03 кв м
Гараж — 35,52 кв м

План первого этажа


Спальня — 19,11 кв м
Спальня — 17,35 кв м
Спальня — 14,56 кв м
Холл — 5,05 кв м
Ванная 1 — 9,73 кв м
Ванная 2 — 6,89 кв м
Спальня — 20,70 кв м
Коридор — 2,82 кв м
Гардероб — 3,83 кв м
Балкон — 4,94 кв м

План мансардного этажа



Одноэтажный дом с мансардой, эркером, гаражом на 2 машины и балконами Одноэтажный дом с мансардой, эркером, гаражом на 2 машины и балконами Одноэтажный дом с мансардой, эркером, гаражом на 2 машины и балконами Одноэтажный дом с мансардой, эркером, гаражом на 2 машины и балконами

Модификации проектов

Внесение изменений и привязка к участку строительства

В любой из проектов от компании VIPplan - Лиски по вашему желанию могут быть внесены изменения в материалы стен, материалы наружной отделки дома, а также будет произведена адаптация проекта под конкретный регион строительства (с учетом грунтов региона, геологических особенностей вашего участка и местных климатических условий) - БЕСПЛАТНО !!! (кроме проектов со скидкой и проектов наших партнеров).

Любой из проектов, размещенных на сайте liski.vipplan.ru мы можем выполнить из требуемых вам строительных материалов: ячеистый бетон (газобетон, пеноблок), керамоблок, кирпич, шлакоблок, бетонный блок, дерево (брус, клееный брус), каркасная технология (деревянный каркас, металлокаркас (ЛСТК)).

Фасад дома и его наружную отделку так же возможно выполнить с применением различных облицовочных материалов: структурной штукатурки, (с утеплителем и без), сайдингом (пластиковый или металлосайдинг), фиброплитами, кирпича.

 
6 Избранные
проекты

Доставка проектов по России: Москва (Московская область), Санкт-Петербург (Ленинградская область), Краснодар, Ростов-на-Дону, Ставрополь, Сочи, Волгоград, Новосибирск, Белгород, Брянск, Воронеж, Саратов, Хабаровск, Астрахань, Нальчик, Владикавказ, Екатеринбург, Тюмень, Самара, Нижний Новгород, Казань, Пермь, Уфа, Челябинск, Красноярск, Ханты-Мансийск, Иркутск, Курган, Оренбург, Омск, Томск, Барнаул, Новокузнецк, Кемерово, Абакан, Чита, Якутск, Южно-Сахалинск, Петропавловск-Камчатский и страны ближнего зарубежья: Белоруссия, Украина, Казахстан