Добро пожаловать на http://vipplan.ru

Випплан Лиски - это тысячи проектов домов в нашем каталоге!

Вы всегда сможете найти для себя проект дома вашей мечты! Даже если этого не случилось, мы готовы в любую минуту предложить проект индивидуального дома.

Забыли пароль?
Вы еще не регистрировались?

Перейдите по ссылке ниже на страницу регистрации.

Регистрация...

Внимание!!!

В проектную документацию могут быть внесены изменения любой сложности, в соответствии в Вашими пожеланиями!

Полезные статьи

Зачем нужен проект дома?

Зачем нужен проект? - спросите вы. Проект дома является важной и неотъемлемой частью при строительстве дома. После покупки проекта, вы получите разрешение на строительство, предоставив его в местную архитектуру, а после, с его помощью, построите дом....

Сборные фундаменты

В наше время все большую популярность при строительстве дома приобретают сборные бетонные и железобетонные блоки. Их использование значительно сокращает время работ и снижает их трудоемкость....

Проекты домов и коттеджей > Каталог проектов домов > Проект двухэтажного дома с гаражом Vg1473

Проект двухэтажного дома с гаражом Vg1473

Проект двухэтажного дома с гаражом
Зарегистрируйтесь

Проект № Vg1473


Техническое описание
Общая площадь: 173.6 м2
Жилая площадь: 79.66 м2
Высота здания: 8.33 м
Размеры дома: 14.84м×14.24м
Цокольный этаж: нет
Гараж: нет
Мансарда: нет

Kонструкция
Фундамент: Ленточный монолитный ж/б
Перекрытия: Монолитная ж/б плита
Материал стен: Газобетон

Архитектурный раздел
Конструктивный раздел
АР+КР - 56 000 (Со скидкой 20%)
Проект индивидуального двухэтажного жилого дома с гаражом с размерами здания 14,84 x 14,24 м. Наружная отделка здания – облицовочный кирпич Фундамент – ленточный монолитный ж/б (под несущими стенами). Наружные стены – газобетонные блоки, утепление экструдированным пеноплолистиролом , отделка - облицовочный кирпич, деревянные панели. Внутренние стены - из газобетонных блоков. Перегородки – из газобетонных блоков. Пол первого этажа - пол по грунту. Межэтажное перекрытие - монолитная ж/б плита. Крыша металлочерепица. Кровля – многоскатая. Окна - металлопластиковые, выполненные по индивидуальному заказу.
Генплан застройки участка / Паспорт проекта 7000 руб / 10000 руб
Инженерный раздел (полный) 87000 руб
Смета на строительство 43500 руб
Теплотехнический расчет материалов стен Бесплатно
Стоимость проекта со незначительнми изменениями 65650 руб
Стоимость проекта со средними изменениями* 78700 руб
Стоимость проекта со значительными изменениями** 82200 руб

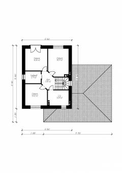
План первого этажа


Гараж - 31,37 м2
Тамбур - 2,01 м2
Бойлерная - 11,31 м2
Холл - 7,08 м2
С/у - 3,68 м2
Кухня-столовая - 17,54 м2
Гостиная - 35,07 м2

Проект двухэтажного дома с гаражом

Проект двухэтажного дома с гаражом

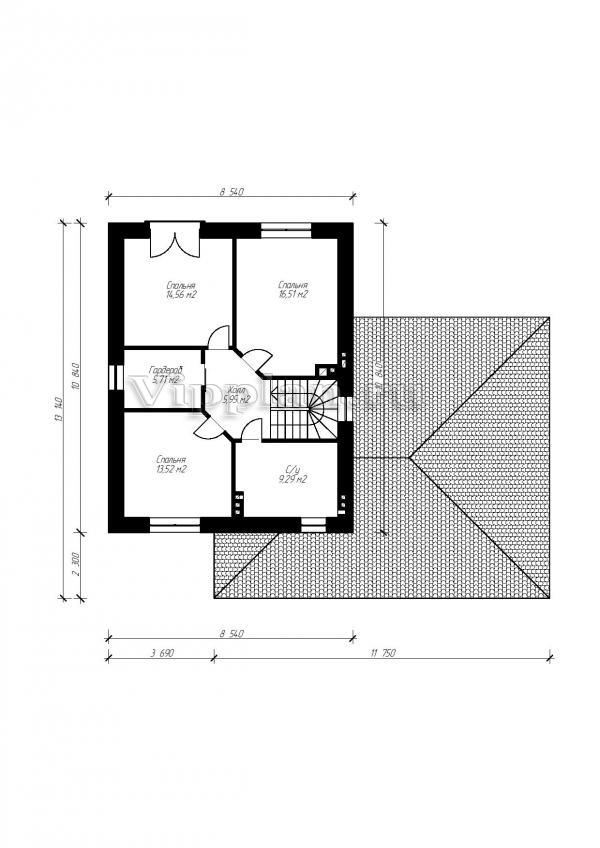
План второго этажа


Спальня - 13,52 м2
С/у - 9,29 м2
Холл - 5,95 м2
Гардероб - 5,71 м2
Спальня - 14,56 м2
Спальня - 16,51 м2
Проект двухэтажного дома с гаражом Проект двухэтажного дома с гаражом Проект двухэтажного дома с гаражом Проект двухэтажного дома с гаражом

Модификации проектов

Внесение изменений и привязка к участку строительства

В любой из проектов от компании VIPplan - Лиски по вашему желанию могут быть внесены изменения в материалы стен, материалы наружной отделки дома, а также будет произведена адаптация проекта под конкретный регион строительства (с учетом грунтов региона, геологических особенностей вашего участка и местных климатических условий) - БЕСПЛАТНО !!! (кроме проектов со скидкой и проектов наших партнеров).

Любой из проектов, размещенных на сайте liski.vipplan.ru мы можем выполнить из требуемых вам строительных материалов: ячеистый бетон (газобетон, пеноблок), керамоблок, кирпич, шлакоблок, бетонный блок, дерево (брус, клееный брус), каркасная технология (деревянный каркас, металлокаркас (ЛСТК)).

Фасад дома и его наружную отделку так же возможно выполнить с применением различных облицовочных материалов: структурной штукатурки, (с утеплителем и без), сайдингом (пластиковый или металлосайдинг), фиброплитами, кирпича.

 
6 Избранные
проекты

Доставка проектов по России: Москва (Московская область), Санкт-Петербург (Ленинградская область), Краснодар, Ростов-на-Дону, Ставрополь, Сочи, Волгоград, Новосибирск, Белгород, Брянск, Воронеж, Саратов, Хабаровск, Астрахань, Нальчик, Владикавказ, Екатеринбург, Тюмень, Самара, Нижний Новгород, Казань, Пермь, Уфа, Челябинск, Красноярск, Ханты-Мансийск, Иркутск, Курган, Оренбург, Омск, Томск, Барнаул, Новокузнецк, Кемерово, Абакан, Чита, Якутск, Южно-Сахалинск, Петропавловск-Камчатский и страны ближнего зарубежья: Белоруссия, Украина, Казахстан