Добро пожаловать на http://vipplan.ru

Випплан Лиски - это тысячи проектов домов в нашем каталоге!

Вы всегда сможете найти для себя проект дома вашей мечты! Даже если этого не случилось, мы готовы в любую минуту предложить проект индивидуального дома.

Забыли пароль?
Вы еще не регистрировались?

Перейдите по ссылке ниже на страницу регистрации.

Регистрация...

Внимание!!!

В проектную документацию могут быть внесены изменения любой сложности, в соответствии в Вашими пожеланиями!

Полезные статьи

Типы и разновидности кровли

Кровля состоит из сплошного настила, стяжки и обрешетки, поддерживающих стропила и несколько слоев изоляции, призванных уберечь кровельное пространство от негативного воздействия пара и влаги....

Мероприятия по получению разрешения на строительство в Лисках

Хотите построить дом в Лисках? Не знаете с чего начать? Для начала, нужно заказать проект, а после получить разрешение на строительство. ...

Проекты домов и коттеджей > Каталог проектов домов > Проект одноэтажного дома с мансардой Vg1522

Проект одноэтажного дома с мансардой Vg1522

Проект одноэтажного дома с мансардой
Зарегистрируйтесь

Проект № Vg1522


Техническое описание
Общая площадь: 374.23 м2
Жилая площадь: 125.1 м2
Высота здания: 9.55 м
Размеры дома: 15.02м×20.92м
Кол-во комнат: 6
Цокольный этаж: нет
Гараж: нет
Мансарда: есть

Kонструкция
Фундамент: сваи, частично монолитная ж/б плита
Перекрытия: деревянные двутавровые балки
Материал стен: Каркас

Архитектурный раздел
Конструктивный раздел

Смета на строительство
АР+КР - 92 000 (Со скидкой 20%)
Проект индивидуального одноэтажного жилого дома с мансардой с размерами здания 15,02 x 20,92 м. Наружная отделка здания –штукатурка, камень. Фундамент – винтовые сваи, частично монолитная ж/б плита. Наружные стены – деревянный каркас отделкой штукатуркой и камнем. Внутренние стены – деревянный карка Перегородки – каркасные с ГКЛ. Пол гаража - пол по монолитной плите, пол первого этажа, межэтажное перекрытие - деревянные двутавровые балки. Крыша многоскатная. Кровля – металлочерепица. Окна — металлопластиковые
Генплан застройки участка / Паспорт проекта 7000 руб / 10000 руб
Инженерный раздел (полный) 187000 руб
Смета на строительство 70125 руб (93500 руб)
Теплотехнический расчет материалов стен Бесплатно
Стоимость проекта со незначительнми изменениями 105650 руб
Стоимость проекта со средними изменениями* 133700 руб
Стоимость проекта со значительными изменениями** 141200 руб

План первого этажа


Тамбур — 4,25 м2
Холл — 17,39 м2
С/у — 4,17 м2
Гардероб — 5,28 м2
Кабинет — 12,11 м2
Спальня — 11,42 м2
Бойлерная — 14,41 м2
Спальня — 11,42 м2
Столовая - 21,85 м2
Гостиная — 37,37 м2
Кухня — 18,57 м2
Кладовая — 4,97 м2
Гараж — 45,76

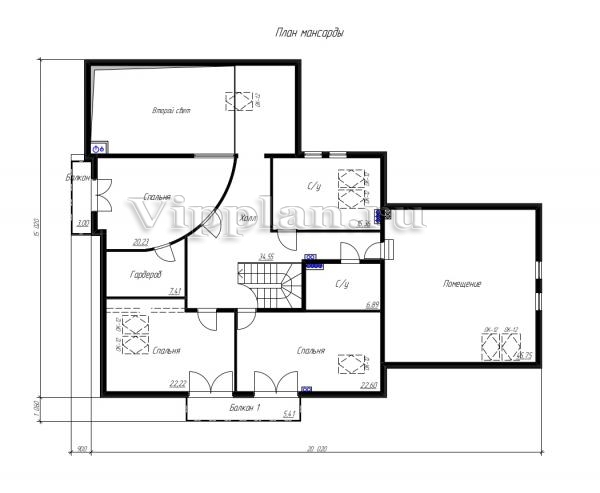
План мансардного этажа


Холл — 34,55 м2
С/у — 15,36 м2
С/у — 6,89 м2
Спальня — 22,60 м2
Спальня — 22,22 м2
Спальня — 20,23 м2
Гардероб — 7,41 м2
Помещение — 45,75 м2
Проект одноэтажного дома с мансардой Проект одноэтажного дома с мансардой Проект одноэтажного дома с мансардой Проект одноэтажного дома с мансардой
Внесение изменений и привязка к участку строительства

В любой из проектов от компании VIPplan - Лиски по вашему желанию могут быть внесены изменения в материалы стен, материалы наружной отделки дома, а также будет произведена адаптация проекта под конкретный регион строительства (с учетом грунтов региона, геологических особенностей вашего участка и местных климатических условий) - БЕСПЛАТНО !!! (кроме проектов со скидкой и проектов наших партнеров).

Любой из проектов, размещенных на сайте liski.vipplan.ru мы можем выполнить из требуемых вам строительных материалов: ячеистый бетон (газобетон, пеноблок), керамоблок, кирпич, шлакоблок, бетонный блок, дерево (брус, клееный брус), каркасная технология (деревянный каркас, металлокаркас (ЛСТК)).

Фасад дома и его наружную отделку так же возможно выполнить с применением различных облицовочных материалов: структурной штукатурки, (с утеплителем и без), сайдингом (пластиковый или металлосайдинг), фиброплитами, кирпича.

 
6 Избранные
проекты

Доставка проектов по России: Москва (Московская область), Санкт-Петербург (Ленинградская область), Краснодар, Ростов-на-Дону, Ставрополь, Сочи, Волгоград, Новосибирск, Белгород, Брянск, Воронеж, Саратов, Хабаровск, Астрахань, Нальчик, Владикавказ, Екатеринбург, Тюмень, Самара, Нижний Новгород, Казань, Пермь, Уфа, Челябинск, Красноярск, Ханты-Мансийск, Иркутск, Курган, Оренбург, Омск, Томск, Барнаул, Новокузнецк, Кемерово, Абакан, Чита, Якутск, Южно-Сахалинск, Петропавловск-Камчатский и страны ближнего зарубежья: Белоруссия, Украина, Казахстан