Добро пожаловать на http://vipplan.ru

Випплан Лиски - это тысячи проектов домов в нашем каталоге!

Вы всегда сможете найти для себя проект дома вашей мечты! Даже если этого не случилось, мы готовы в любую минуту предложить проект индивидуального дома.

Забыли пароль?
Вы еще не регистрировались?

Перейдите по ссылке ниже на страницу регистрации.

Регистрация...

Внимание!!!

В проектную документацию могут быть внесены изменения любой сложности, в соответствии в Вашими пожеланиями!

Полезные статьи

Газобетонные перекрытия

Перекрытия из газобетонных плит, устанавливаются без применения подъемников и кранов. Строители устанавливают прочные и, что немаловажно, легкие газоблоки без помощи техники. Ячеистый бетон (пенобетон и газобетон) нашел широкое применение в домах из пенобетона и газобетона в Лисках...

Закладка фундамента дома

Закладка фундамента является одним из первых и самых главных этапов строительства любого дома. Все здание опирается именно на эту часть конструкции. Поэтому главная функция фундамента заключается в том, чтобы нести на себе весь вес несущих стен и кровли, а значит предотвращать появление перекоса стен, проседание сооружения, что неизбежно приводит к образованию трещин в стенах здания и в фундаменте....

Проекты домов и коттеджей > Каталог проектов домов > Проект уютного одноэтажного жилого дома Vg170

Проект уютного одноэтажного жилого дома Vg170

Проект уютного одноэтажного жилого дома
Зарегистрируйтесь

Проект № Vg170


Техническое описание
Общая площадь: 145 м2
Высота здания: 8.52 м
Размеры дома: 9м×10м
Кол-во комнат: 5
Цокольный этаж: нет
Гараж: нет
Мансарда: есть

Kонструкция
Фундамент: Фундаментная плита
Отделка дома: Штукатурка
Перекрытия: Деревянные балки перекрытия
Материал стен: Керамический блок

Архитектурный раздел
Конструктивный раздел
АР+КР - 52 000 (Со скидкой 20%)


Проект индивидуального одноэтажного жилого дома с размерами 9,04х10,04 м.
Наружная отделка здания – штукатурка.
Цоколь – клинкерная плитка.
Фундамент –  фундаментная плита
Наружные стены запроектированы из: керамического блока
Внутренние стены и перегородки: из  керамического  блока
Перекрытие межэтажное –  деревянные балки перекрытия. Материал кровли –  металлочерепица.
Окна - металлопластиковые, выполненные по индивидуальному заказу. 
 
 
Технико-экономические показатели
 
Общая площадь помещений - 145,21 м2
Этажность - 1 с мансардой
Высота здания - 8,52 м от отметки ур. земли до конька
 

Генплан застройки участка / Паспорт проекта 7000 руб / 10000 руб
Инженерный раздел (полный) 72500 руб
Смета на строительство 36250 руб
Теплотехнический расчет материалов стен Бесплатно
Стоимость проекта со незначительнми изменениями 61350 руб
Стоимость проекта со средними изменениями* 72300 руб
Стоимость проекта со значительными изменениями** 75200 руб

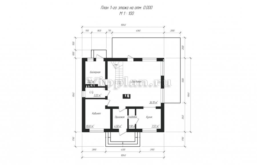
План первого этажа


Прихожая - 4,58 м2
Гостиная - 36,19 м2
Кухня - 7,57 м2
Кладовая - 1,98 м2
Кабинет - 10,61 м2
С/у - 3,22 м2
Бойлерная - 7,27 м2

План мансардного этажа


Холл - 10,64 м2
Спальня - 18,60 м2
Спальня - 18,43 м2
Спальня - 18,37 м2
С/у - 7,76 м2
Проект уютного одноэтажного жилого дома Проект уютного одноэтажного жилого дома Проект уютного одноэтажного жилого дома Проект уютного одноэтажного жилого дома
Внесение изменений и привязка к участку строительства

В любой из проектов от компании VIPplan - Лиски по вашему желанию могут быть внесены изменения в материалы стен, материалы наружной отделки дома, а также будет произведена адаптация проекта под конкретный регион строительства (с учетом грунтов региона, геологических особенностей вашего участка и местных климатических условий) - БЕСПЛАТНО !!! (кроме проектов со скидкой и проектов наших партнеров).

Любой из проектов, размещенных на сайте liski.vipplan.ru мы можем выполнить из требуемых вам строительных материалов: ячеистый бетон (газобетон, пеноблок), керамоблок, кирпич, шлакоблок, бетонный блок, дерево (брус, клееный брус), каркасная технология (деревянный каркас, металлокаркас (ЛСТК)).

Фасад дома и его наружную отделку так же возможно выполнить с применением различных облицовочных материалов: структурной штукатурки, (с утеплителем и без), сайдингом (пластиковый или металлосайдинг), фиброплитами, кирпича.

 
6 Избранные
проекты

Доставка проектов по России: Москва (Московская область), Санкт-Петербург (Ленинградская область), Краснодар, Ростов-на-Дону, Ставрополь, Сочи, Волгоград, Новосибирск, Белгород, Брянск, Воронеж, Саратов, Хабаровск, Астрахань, Нальчик, Владикавказ, Екатеринбург, Тюмень, Самара, Нижний Новгород, Казань, Пермь, Уфа, Челябинск, Красноярск, Ханты-Мансийск, Иркутск, Курган, Оренбург, Омск, Томск, Барнаул, Новокузнецк, Кемерово, Абакан, Чита, Якутск, Южно-Сахалинск, Петропавловск-Камчатский и страны ближнего зарубежья: Белоруссия, Украина, Казахстан